Onder bod
Herten

Kristalweg 30

€ 198.000 Kosten koper
Bezichtiging aanvragen

Ondernemers opgelet, bedrijfspand te koop! Mooie centrale locatie nabij A73.

Scroll

Omschrijving

Altijd al op zoek geweest naar een eigen bedrijfspand? Dan is dit object een geweldige kans! Recent gebouwd, goed geïsoleerd en een eigen buitenterrein. De bedrijfsruimte is gelegen op een uitstekende locatie op het gewilde Bedrijventerrein Merum-Herten, nabij de autosnelweg A 73 en de provinciale weg N271. De begane grond beschikt over een bedrijfshal…

Altijd al op zoek geweest naar een eigen bedrijfspand?

Dan is dit object een geweldige kans!

Recent gebouwd, goed geïsoleerd en een eigen buitenterrein.

De bedrijfsruimte is gelegen op een uitstekende locatie op het gewilde Bedrijventerrein Merum-Herten, nabij de autosnelweg A 73 en de provinciale weg N271.

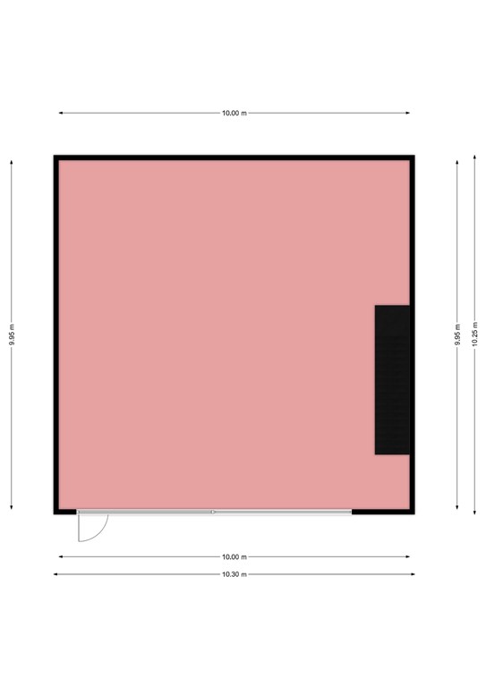
De begane grond beschikt over een bedrijfshal van circa 100 m², op de verdieping bevind zich een opslagruimte van circa 74 m². Het verharde buitenterrein ligt aan de voor- en linkerzijde met een oppervlakte van circa 190 m².

Bijzonderheden:
Vloeroppervlakte circa 174 m².
Buitenterrein circa 190 m².
Bouwjaar 2019.
O.a. voorzien van een elektrisch bedienbare overhead poort, beveiligingshekwerk voor ramen en alarminstallatie met camera’s.
Bestemming: bedrijven categorie 2 tot en met 3.2.
Aanvaarding per direct.

Vraagprijs: € 198.000,- k.k. exclusief BTW

Toon meer Lees minder

Kenmerken

  • Status Onder bod
  • Vraagprijs € 198.000 Kosten koper
  • Aanvaarding In overleg
  • Bouwjaar 2019
  • Locatie Aan een stille straat, Bedrijfspark, Industrie gebied
Toon meerToon minder

De omgeving

Plattegronden

Benieuwd naar uw woningwaarde?

Wij denken graag met u mee en maken voor u een strategie op maat voor de koop, verkoop of verhuur van uw woning.

Wij gebruiken cookies

Dit cookiebeleid legt uit wat cookies zijn en hoe we deze gebruiken op onze website. Hier lees je welke type cookies wij gebruiken

Meer info

Neem contact op!